★リノベーション工事・パート6!!

★リノベーション工事・パート6!!

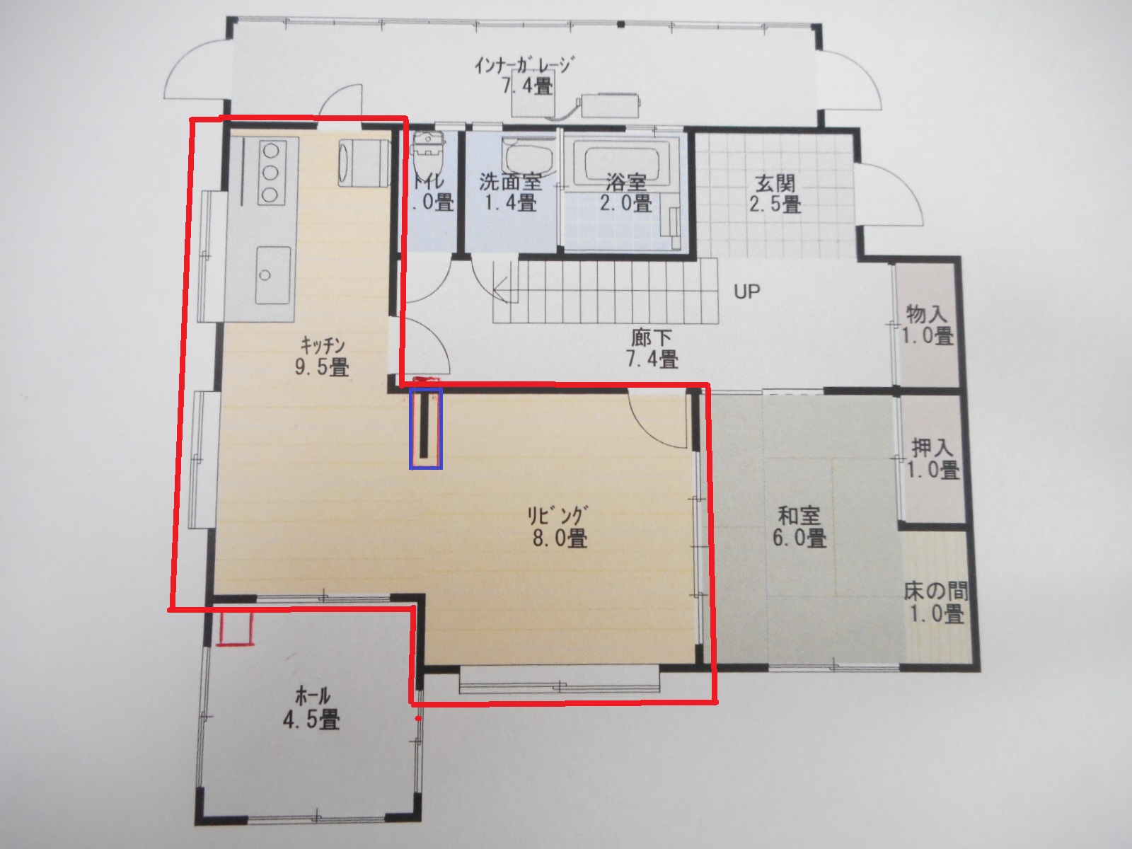
*1階の平面図!!


今回は赤線で囲った、キッチンとリビングの改修工事を紹介します。

◎キッチン改修工事。
 *工事前!!

 *改修工事の主な内容。
 ・システムキッチンを入替えます。
 ・床は赤線から向こうの流し台廻りはCFに、他は既存フロア材を解体、撤去後、新規フロア材施工。
 ・天井と壁廻りのクロスの張替え
 ・出窓のカウンターの塗装。
 ・その他、電気の配線改修(スイッチ、コンセント、インターホンのモニター等)


*作業の様子。
流し台廻りを解体します!! 流し台廻りの解体、撤去が完了しました!!
 
CFを施工する部分の下地コンパネを、解体します!! コンパネを撤去後、根太の不陸を整備します!!
 
新規システムキッチン用の給水、給湯、排水管の移設整備をします!! CF下地の、新規のコンパネを施工します!!
(2重張りします)

 部分はCF下地のコンパネの施工後、養生をしました。
 
部分は既存のフロア材を撤去後、新規フロア材を施工しています!!


◎リビング改修工事。
 *工事前!!(リビングからキッチン方向を見る)


*改修工事の主な内容。
 ・赤線で囲った部分の壁の撤去。
 ・床の張替え。
 ・天井と壁廻りのクロスの張替え。
 ・出窓カウンターの塗装。
 ・電気配線の改修(エアコンやテレビの配線改修等)


*作業の様子。
壁を解体しました!! 骨組みも、解体しました!!
 
既存のフロア材を解体、撤去しました!! 新規フロア材を、施工します!!

新規フロア材の施工後、養生をしました!!


この様に8/10の完成、引渡しをめざして作業は順調に進んでいます。